Plany budynków
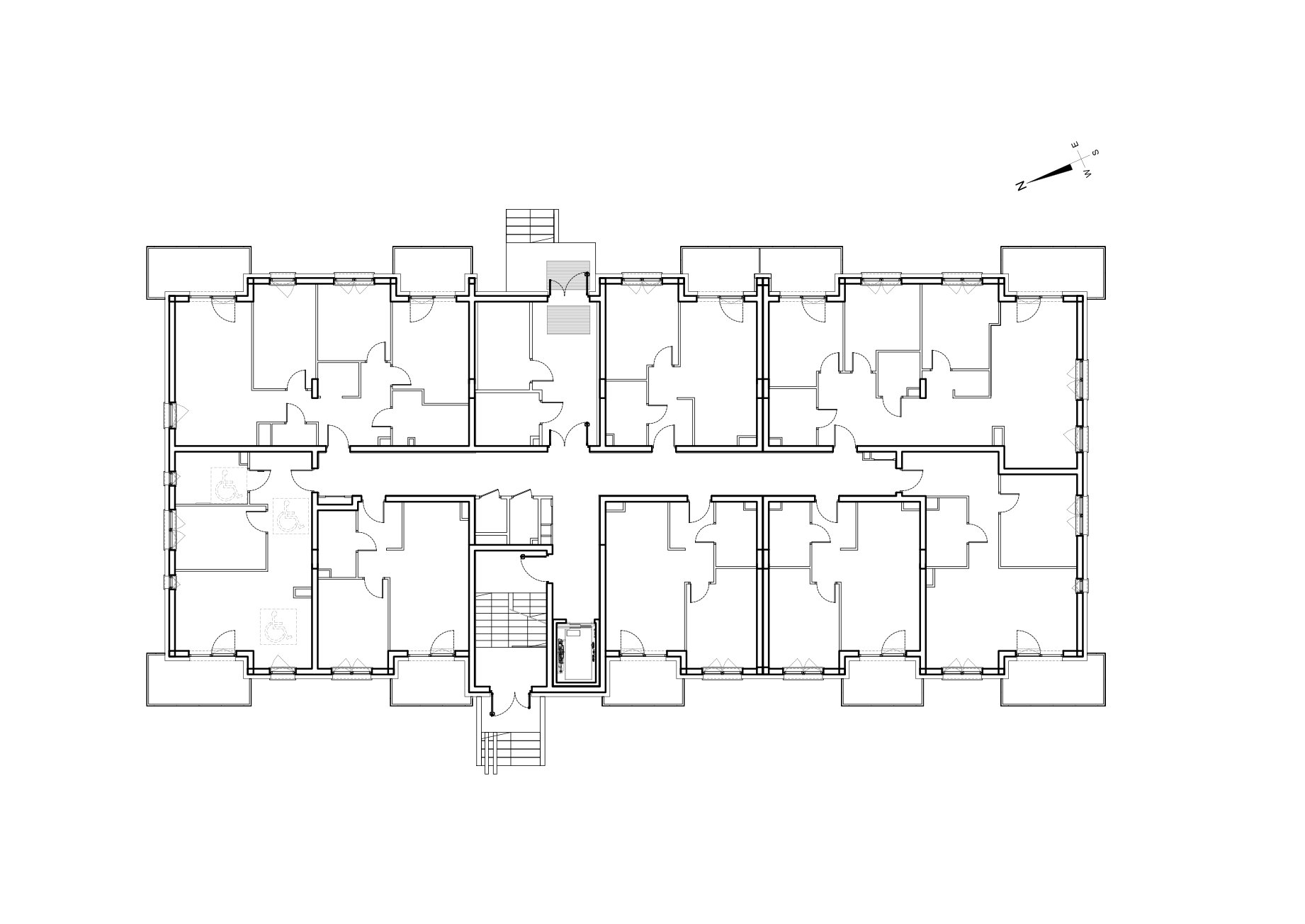
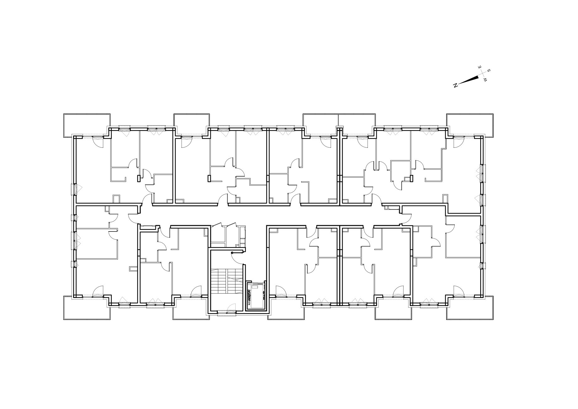
Przemyślane układy mieszkań – funkcjonalność, która robi różnicę
Przestronne salony łączące strefę wypoczynku z aneksem kuchennym tworzą otwartą przestrzeń, sprzyjającą codziennemu życiu. Ustawne sypialnie pozwalają na swobodną aranżację wnętrza, a duże przeszklenia zapewniają doskonałe doświetlenie pomieszczeń. Dodatkowym atutem są przestronne balkony i tarasy, które stanowią prywatną strefę relaksu na świeżym powietrzu.
Na każdym piętrze znajdują się lokale o zróżnicowanych metrażach i układach, dzięki czemu każdy może znaleźć mieszkanie dopasowane do swoich potrzeb. Budynki wyposażone są w nowoczesne windy, zapewniające szybki i wygodny dostęp do wszystkich kondygnacji.

-
Kondygnacja podziemna: Przeznaczona na parking podziemny oraz komórki lokatorskie, zapewniając mieszkańcom wygodę i dodatkową przestrzeń do przechowywania.
-
Kondygnacje naziemne ( 0-5 ): Mieszczą mieszkania o zróżnicowanych metrażach i układach, zaprojektowane z myślą o maksymalnym komforcie i funkcjonalności.
